譲渡情報の詳細
この譲渡情報はすでに掲載終了しております
譲渡No.10722 さいたま市大宮区宮町 367.882万円 大宮駅徒歩5分!ダイニングバー居抜き物件!
| 最寄り駅 | 東武野田線 大宮 徒歩5分 (乗降者数:135,984人) | ||
|---|---|---|---|
| JR京浜東北・根岸線 大宮 徒歩5分 (乗降者数:514,688人) | |||
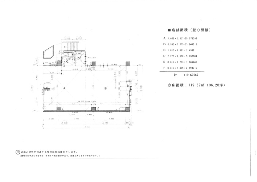
| 面積m2・坪 | 834.11m2 / 252.32坪 | 情報公開日 | 2025/05/18 00:00:00 |
| 希望譲渡額 | 会員専用。会員登録後、ご覧になれます。 | ||
| 業態 | ダイニングバー | ||
| コメント | 大宮駅徒歩5分!ダイニングバー居抜き物件! | ||
大宮で現在公開中の店舗物件はこちら
大宮で現在公開中の譲渡情報はこちら
譲渡の成功事例(最新1件)




