譲渡情報の詳細
この譲渡情報はすでに掲載終了しております
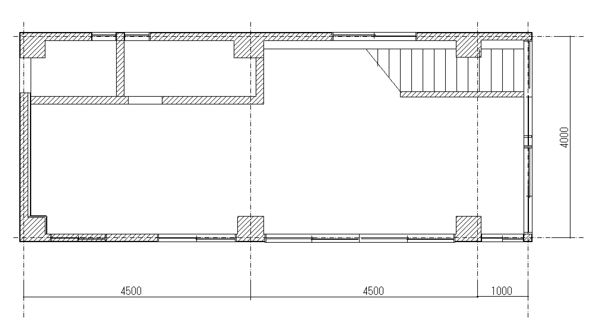
譲渡No.8054 千代田区神田須田町1 30.8万円 靖国通りに面した1階、ラーメン店居抜き!複数駅利用可能
| 最寄り駅 | JR山手線 神田 徒歩4分 (乗降者数:213,316人) | ||
|---|---|---|---|
| 面積m2・坪 | 44.49m2 / 13.46坪 | 情報公開日 | 2020/07/03 00:00:00 |
| 希望譲渡額 | 会員専用。会員登録後、ご覧になれます。 | ||
| 業態 | ラーメン | ||
| コメント | 靖国通りに面した1階、ラーメン店居抜き!複数駅利用可能 | ||
神田で現在公開中の店舗物件はこちら
神田で現在公開中の譲渡情報はこちら
譲渡の成功事例(最新1件)



