譲渡情報の詳細
この譲渡情報はすでに掲載終了しております
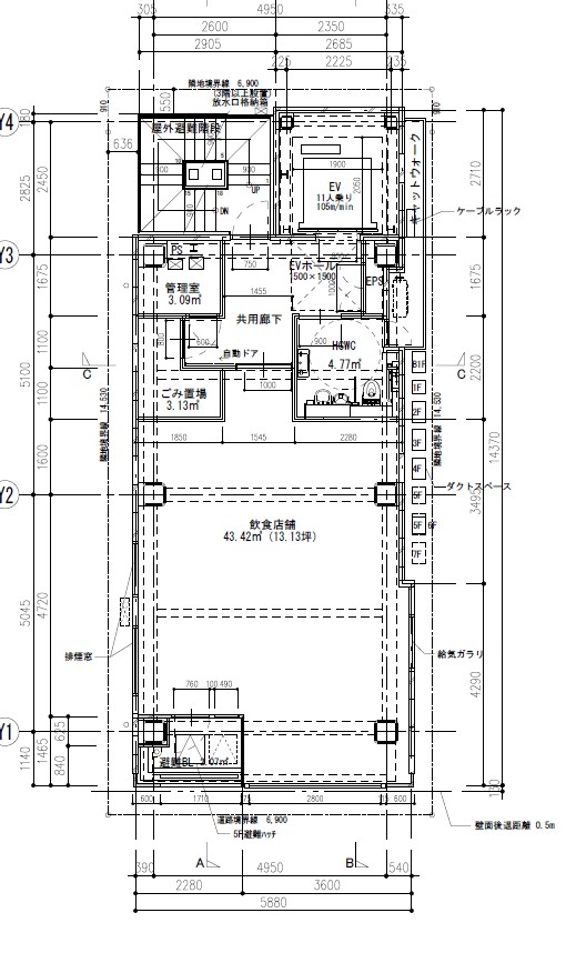
譲渡No.8821 中央区銀座6 198.62万円 銀座駅、有楽町駅近くのレストラン居抜き!
| 最寄り駅 | 東京メトロ銀座線 銀座 徒歩2分 (乗降者数:257,440人) | ||
|---|---|---|---|
| JR山手線 有楽町 徒歩5分 (乗降者数:335,496人) | |||
| 面積m2・坪 | 142.12m2 / 42.99坪 | 情報公開日 | 2021/06/30 00:00:00 |
| 希望譲渡額 | 会員専用。会員登録後、ご覧になれます。 | ||
| 業態 | レストラン | ||
| コメント | 銀座駅、有楽町駅近くのレストラン居抜き! | ||
銀座で現在公開中の店舗物件はこちら
譲渡の成功事例(最新1件)




