居抜き
大阪市福島区福島 77.0万円 西梅田にも近い福島1丁目 人気ベーカリーカフェの居抜きの居抜き・貸店舗物件
こちらの物件は、募集が終了しています。
物件の情報は一部非公開となっています。
飲食店ドットコムでは日々新しい飲食店物件を更新しています。ご希望のエリア等を入力し、最新の物件をお探しください。
飲食店ドットコムでは日々新しい飲食店物件を更新しています。ご希望のエリア等を入力し、最新の物件をお探しください。
希望条件を登録すると、該当物件のお知らせメールが届く
「希望物件マッチングサービス」もご活用ください。
「希望物件マッチングサービス」もご活用ください。
別の物件を探す
物件詳細情報
| 最寄り駅 |
阪神本線 福島 徒歩5分 (乗降者数:11,082人/日) |
||
|---|---|---|---|
| 面積m2・坪 | 202.15m2 / 61.15坪 | 情報登録日 情報更新日 |
2021/04/07
2021/07/02 |
| 造作譲渡料 / 前テナント | 相談 / カフェ | ||
| 飲食店出店の可否 | 飲食店出店可 | ||
| 備考 |
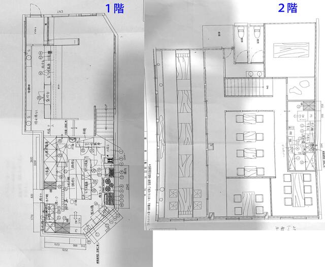
当社指定総合保険契約要。当社指定賃貸保証契約要。造作譲渡希望 現況:賃貸中6月末退去予定。入居時期:相談 1階~3階一棟貸しベーカリーカフェ 現在営業中 国道1号線沿いで視認性良好 営業7年目オシャレで綺麗なお店です 詳細はお気軽にお問合せください ㈱テンポアップ 大阪天六支社 岡 秀樹 |
||
福島駅周辺の飲食店の運営費の相場
-
賃料相場⇒福島駅の物件相場を見る
平均坪単価:21,015円 最高坪単価:48,780円 最低坪単価:6,947円 -
正社員平均月給:29.0万円 アルバイト平均時給:1,263円
運営費の相場データについて
- こちらの情報は日々更新されており、最新の情報がご覧いただけます。
- サンプル件数の増減により表現に偏りが出ることもございますので予めご了承下さい。
- ※賃料相場は、飲食店ドットコムに直近1年間で掲載された物件を集計したものになります。
- ※給与相場は、求人飲食店ドットコムに直近1年間に掲載された求人情報の給与下限額より集計したものになります。
