スケルトン
四街道市大日 44.0万円 四街道駅徒歩15分の貸店舗物件
こちらの物件は、募集が終了しています。
物件の情報は一部非公開となっています。
飲食店ドットコムでは日々新しい飲食店物件を更新しています。ご希望のエリア等を入力し、最新の物件をお探しください。
飲食店ドットコムでは日々新しい飲食店物件を更新しています。ご希望のエリア等を入力し、最新の物件をお探しください。
希望条件を登録すると、該当物件のお知らせメールが届く
「希望物件マッチングサービス」もご活用ください。
「希望物件マッチングサービス」もご活用ください。
別の物件を探す
物件詳細情報
| 最寄り駅 |
JR総武本線 四街道 徒歩15分 (乗降者数:43,950人/日) JR総武本線 四街道 バス5分 徒歩1分 (乗降者数:43,950人/日) |
||
|---|---|---|---|
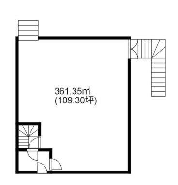
| 面積m2・坪 | 361.35m2 / 109.31坪 | 情報登録日 情報更新日 |
2025/07/25
2025/07/25 |
| 造作譲渡料 / 前テナント | |||
| 飲食店出店の可否 | 飲食店出店可 | ||
| 備考 | 定期借家10年契約 駐車場空き有(無料)店舗総合(借家人賠償責任付)保険加入要 ※建物裏に立体駐車場あります。 | ||
四街道駅周辺の飲食店の運営費の相場
-
賃料相場⇒四街道駅の物件相場を見る
平均坪単価:13,756円 最高坪単価:50,000円 最低坪単価:4,025円
運営費の相場データについて
- こちらの情報は日々更新されており、最新の情報がご覧いただけます。
- サンプル件数の増減により表現に偏りが出ることもございますので予めご了承下さい。
- ※賃料相場は、飲食店ドットコムに直近1年間で掲載された物件を集計したものになります。
- ※給与相場は、求人飲食店ドットコムに直近1年間に掲載された求人情報の給与下限額より集計したものになります。
