スケルトン
ふじみ野市上福岡1 55.0万円 ■駅からふじみ野市役所へと続く東口サンロード沿いの視認性の高い立地の貸店舗物件
こちらの物件は、募集が終了しています。
物件の情報は一部非公開となっています。
飲食店ドットコムでは日々新しい飲食店物件を更新しています。ご希望のエリア等を入力し、最新の物件をお探しください。
飲食店ドットコムでは日々新しい飲食店物件を更新しています。ご希望のエリア等を入力し、最新の物件をお探しください。
希望条件を登録すると、該当物件のお知らせメールが届く
「希望物件マッチングサービス」もご活用ください。
「希望物件マッチングサービス」もご活用ください。
別の物件を探す
物件詳細情報
| 最寄り駅 |
東武東上線 上福岡 徒歩3分 (乗降者数:56,428人/日) |
||
|---|---|---|---|
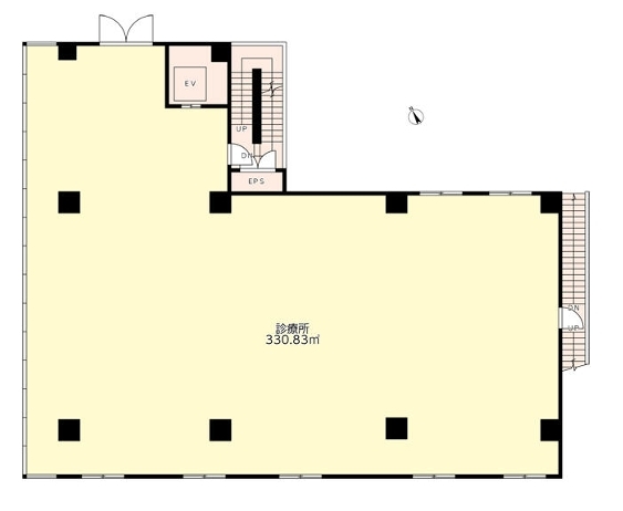
| 面積m2・坪 | 320.6m2 / 96.98坪 | 情報登録日 情報更新日 |
2025/01/08
2025/02/03 |
| 造作譲渡料 / 前テナント | |||
| 飲食店出店の可否 | 飲食店出店可 | ||
| 備考 | 諸条件はご相談ください | ||
上福岡駅周辺の飲食店の運営費の相場
-
賃料相場⇒上福岡駅の物件相場を見る
平均坪単価:11,858円 最高坪単価:39,286円 最低坪単価:3,716円
運営費の相場データについて
- こちらの情報は日々更新されており、最新の情報がご覧いただけます。
- サンプル件数の増減により表現に偏りが出ることもございますので予めご了承下さい。
- ※賃料相場は、飲食店ドットコムに直近1年間で掲載された物件を集計したものになります。
- ※給与相場は、求人飲食店ドットコムに直近1年間に掲載された求人情報の給与下限額より集計したものになります。
