スケルトン
久喜市久喜中央4 66.29万円 商業施設隣接のビル1階 間口の広い飲食可能の店舗区画 レストラン系も可の貸店舗物件
こちらの物件は、募集が終了しています。
物件の情報は一部非公開となっています。
飲食店ドットコムでは日々新しい飲食店物件を更新しています。ご希望のエリア等を入力し、最新の物件をお探しください。
飲食店ドットコムでは日々新しい飲食店物件を更新しています。ご希望のエリア等を入力し、最新の物件をお探しください。
希望条件を登録すると、該当物件のお知らせメールが届く
「希望物件マッチングサービス」もご活用ください。
「希望物件マッチングサービス」もご活用ください。
別の物件を探す
物件詳細情報
| 最寄り駅 |
JR東北本線 久喜 徒歩9分 (乗降者数:70,694人/日) 東武伊勢崎線 久喜 徒歩9分 (乗降者数:51,656人/日) |
||
|---|---|---|---|
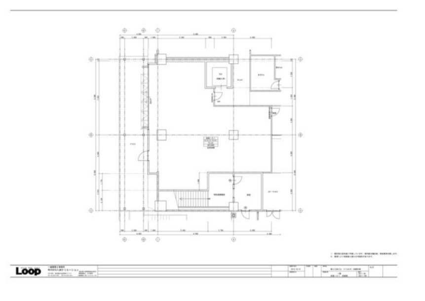
| 面積m2・坪 | 132.79m2 / 40.17坪 | 情報登録日 情報更新日 |
2025/08/07
2025/08/07 |
| 造作譲渡料 / 前テナント | パン販売店 | ||
| 飲食店出店の可否 | 飲食店出店可 | ||
| 備考 |
※ビル空調費:14,757円税込 ※倉庫区画あり:3.69坪(賃料:16,500円税込) 業種によりゴミ処理費が必要となります。 ※基本法人との契約 営業時間 9時~23時 飲食、サービス、物販等 業種相談 |
||
久喜駅周辺の飲食店の運営費の相場
-
賃料相場⇒久喜駅の物件相場を見る
平均坪単価:12,641円 最高坪単価:17,674円 最低坪単価:3,771円
運営費の相場データについて
- こちらの情報は日々更新されており、最新の情報がご覧いただけます。
- サンプル件数の増減により表現に偏りが出ることもございますので予めご了承下さい。
- ※賃料相場は、飲食店ドットコムに直近1年間で掲載された物件を集計したものになります。
- ※給与相場は、求人飲食店ドットコムに直近1年間に掲載された求人情報の給与下限額より集計したものになります。
