スケルトン
飲食店不可
松戸市小金 43.45万円 北小金駅徒歩2分の貸店舗物件
こちらの物件は、募集が終了しています。
物件の情報は一部非公開となっています。
飲食店ドットコムでは日々新しい飲食店物件を更新しています。ご希望のエリア等を入力し、最新の物件をお探しください。
飲食店ドットコムでは日々新しい飲食店物件を更新しています。ご希望のエリア等を入力し、最新の物件をお探しください。
希望条件を登録すると、該当物件のお知らせメールが届く
「希望物件マッチングサービス」もご活用ください。
「希望物件マッチングサービス」もご活用ください。
別の物件を探す
物件詳細情報
| 最寄り駅 |
JR常磐線 北小金 徒歩2分 (乗降者数:48,670人/日) JR常磐線 新松戸 徒歩19分 (乗降者数:78,280人/日) |
||
|---|---|---|---|
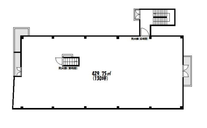
| 面積m2・坪 | 429.75m2 / 130坪 | 情報登録日 情報更新日 |
2025/08/04
2025/08/04 |
| 造作譲渡料 / 前テナント | |||
| 飲食店出店の可否 | 飲食店出店不可 | ||
| 備考 |
更新事務⼿数料:0.5ヶ⽉ 町会費:500円 賃貸保証:加⼊要 全保連100% 設備:トイレ,都市ガス その他の諸条件はご相談ください。 |
||
北小金駅周辺の飲食店の運営費の相場
-
賃料相場⇒北小金駅の物件相場を見る
平均坪単価:11,491円 最高坪単価:22,618円 最低坪単価:3,342円
運営費の相場データについて
- こちらの情報は日々更新されており、最新の情報がご覧いただけます。
- サンプル件数の増減により表現に偏りが出ることもございますので予めご了承下さい。
- ※賃料相場は、飲食店ドットコムに直近1年間で掲載された物件を集計したものになります。
- ※給与相場は、求人飲食店ドットコムに直近1年間に掲載された求人情報の給与下限額より集計したものになります。
