スケルトン
飲食店不可
市川市妙典4 80.5万円 妙典駅徒歩3分 1階 スケルトン物件 駐車場有の貸店舗物件
こちらの物件は、募集が終了しています。
物件の情報は一部非公開となっています。
飲食店ドットコムでは日々新しい飲食店物件を更新しています。ご希望のエリア等を入力し、最新の物件をお探しください。
飲食店ドットコムでは日々新しい飲食店物件を更新しています。ご希望のエリア等を入力し、最新の物件をお探しください。
希望条件を登録すると、該当物件のお知らせメールが届く
「希望物件マッチングサービス」もご活用ください。
「希望物件マッチングサービス」もご活用ください。
別の物件を探す
物件詳細情報
| 最寄り駅 |
東京メトロ東西線 妙典 徒歩3分 (乗降者数:52,706人/日) |
||
|---|---|---|---|
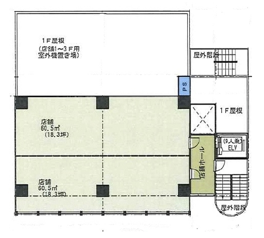
| 面積m2・坪 | 134.4m2 / 40.66坪 | 情報登録日 情報更新日 |
2025/08/19
2025/08/19 |
| 造作譲渡料 / 前テナント | |||
| 飲食店出店の可否 | 飲食店出店不可 | ||
| 備考 |
[業種業態] 出店可能業種:病院・クリニック(婦人科、泌尿器科、乳腺内科、美容整形) [駐車場] 有料あり 空き2台、料金14,300円/月 [その他費用] 雑費5,500円/月 口座振替料:330円/月 保険等:要 3年 賃貸保証:加入要 賃料等合計の100%(年10%) [その他] 新築 現況:未完成 築年月:2025年11月 引渡可能時期:相談 スケルトン渡し、スケルトン返し 駐輪場有(無料) その他の諸条件はご相談ください。 |
||
妙典駅周辺の飲食店の運営費の相場
-
賃料相場⇒妙典駅の物件相場を見る
平均坪単価:14,424円 最高坪単価:27,498円 最低坪単価:6,770円
運営費の相場データについて
- こちらの情報は日々更新されており、最新の情報がご覧いただけます。
- サンプル件数の増減により表現に偏りが出ることもございますので予めご了承下さい。
- ※賃料相場は、飲食店ドットコムに直近1年間で掲載された物件を集計したものになります。
- ※給与相場は、求人飲食店ドットコムに直近1年間に掲載された求人情報の給与下限額より集計したものになります。
