スケルトン
川越市新富町2 68.91万円 クレアモール沿い!軽飲食限定!深夜営業不可!の貸店舗物件
こちらの物件は、募集が終了しています。
物件の情報は一部非公開となっています。
飲食店ドットコムでは日々新しい飲食店物件を更新しています。ご希望のエリア等を入力し、最新の物件をお探しください。
飲食店ドットコムでは日々新しい飲食店物件を更新しています。ご希望のエリア等を入力し、最新の物件をお探しください。
希望条件を登録すると、該当物件のお知らせメールが届く
「希望物件マッチングサービス」もご活用ください。
「希望物件マッチングサービス」もご活用ください。
別の物件を探す
物件詳細情報
| 最寄り駅 |
西武新宿線 本川越 徒歩4分 (乗降者数:53,230人/日) 東武東上線 川越 徒歩7分 (乗降者数:124,534人/日) |
||
|---|---|---|---|
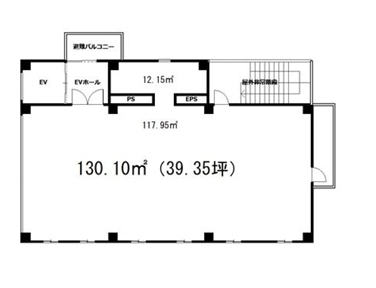
| 面積m2・坪 | 117.9m2 / 35.66坪 | 情報登録日 情報更新日 |
2017/06/10
2017/06/29 |
| 造作譲渡料 / 前テナント | |||
| 飲食店出店の可否 | 飲食店出店可 | ||
| 備考 | 引渡し予定2017年12月。2階約28.1坪、3階約9坪。エアコン4基、トイレ2か所。 | ||
本川越駅周辺の飲食店の運営費の相場
-
賃料相場⇒本川越駅の物件相場を見る
平均坪単価:16,730円 最高坪単価:73,333円 最低坪単価:1,725円 -
正社員平均月給:28.5万円
運営費の相場データについて
- こちらの情報は日々更新されており、最新の情報がご覧いただけます。
- サンプル件数の増減により表現に偏りが出ることもございますので予めご了承下さい。
- ※賃料相場は、飲食店ドットコムに直近1年間で掲載された物件を集計したものになります。
- ※給与相場は、求人飲食店ドットコムに直近1年間に掲載された求人情報の給与下限額より集計したものになります。
