居抜き
足立区千住旭町 33.0万円 ★北千住駅東口徒歩2分!学園通り沿い弊社専任物件!の居抜き・貸店舗物件
こちらの物件は、募集が終了しています。
物件の情報は一部非公開となっています。
飲食店ドットコムでは日々新しい飲食店物件を更新しています。ご希望のエリア等を入力し、最新の物件をお探しください。
飲食店ドットコムでは日々新しい飲食店物件を更新しています。ご希望のエリア等を入力し、最新の物件をお探しください。
希望条件を登録すると、該当物件のお知らせメールが届く
「希望物件マッチングサービス」もご活用ください。
「希望物件マッチングサービス」もご活用ください。
別の物件を探す
物件詳細情報
| 最寄り駅 |
JR常磐線 北千住 徒歩2分 (乗降者数:443,268人/日) 東京メトロ日比谷線 北千住 徒歩2分 (乗降者数:305,071人/日) |
||
|---|---|---|---|
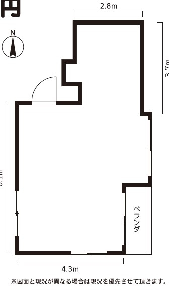
| 面積m2・坪 | 34.71m2 / 10.5坪 | 情報登録日 情報更新日 |
2024/10/04
2024/12/11 |
| 造作譲渡料 / 前テナント | 相談 / マッサージ店 | ||
| 飲食店出店の可否 | 飲食店出店可 | ||
| 備考 |
引渡時期:2024/12/1 引渡状態:相談 導入:共用階段 営業時間:24時間可能 ※原則保証会社加入 ※契約期間相談可能 |
||
北千住駅周辺の飲食店の運営費の相場
-
賃料相場⇒北千住駅の物件相場を見る
平均坪単価:27,613円 最高坪単価:88,000円 最低坪単価:8,262円 -
正社員平均月給:30.2万円 アルバイト平均時給:1,253円
運営費の相場データについて
- こちらの情報は日々更新されており、最新の情報がご覧いただけます。
- サンプル件数の増減により表現に偏りが出ることもございますので予めご了承下さい。
- ※賃料相場は、飲食店ドットコムに直近1年間で掲載された物件を集計したものになります。
- ※給与相場は、求人飲食店ドットコムに直近1年間に掲載された求人情報の給与下限額より集計したものになります。
