スケルトン
京都市中京区河原町通蛸薬師下る塩屋町 143.0万円 京都河原町駅徒歩3分の貸店舗物件
-
無料の会員登録をするだけ!
今すぐ無料会員登録
物件写真・店舗図面
の問い合わせ、確認が可能になります
物件情報
会員登録(無料) をすると周辺飲食店ページで以下のような情報を知ることができます!
- グラフに表示される業態は13種あります。
- 対象の物件から半径100m、250m、500m毎のデータをご覧いただけます。
- 現在、周辺飲食店データは首都圏・関西版のみご利用いただけます。
| 所在地 |
京都市中京区河原町通蛸薬師下る塩屋町
詳しい住所を知るには? 1.取り扱い不動産会社に問い合わせる 問い合わせる(無料会員登録)2.飲食店.COMプレミアムを利用する
飲食店プレミアム(有料サービス)に加入すると、物件の完全な住所を表示。 その他にも物件探しに役立つ特典があります。
|
||
|---|---|---|---|
| 最寄り駅 |
阪急京都本線 京都河原町 徒歩3分 (乗降者数:84,158人/日) 京阪本線 祇園四条 徒歩4分 (乗降者数:48,699人/日) 京阪本線 三条 徒歩6分 (乗降者数:35,842人/日) 地下鉄東西線 三条京阪 徒歩7分 (乗降者数:27,077人/日) |
||
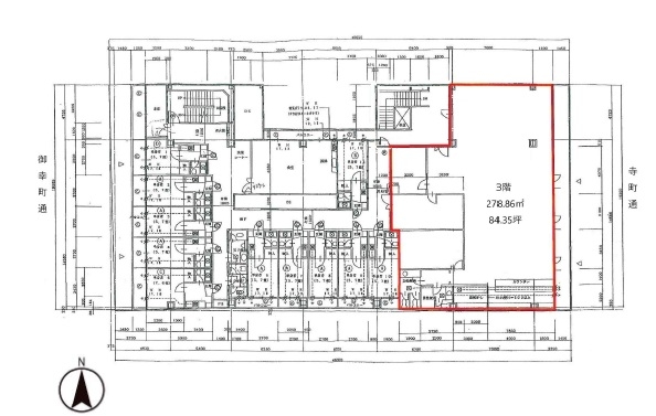
| 賃料 /坪単価 | 143万円 / 17,875円 | 建物・階数 | 地上7階建 ・ 地上3階 |
| 面積m2・坪 | 264.46m2 / 80坪 | ||
| 造作譲渡料 / 前テナント | |||
| 飲食店出店の可否 | 飲食店出店可 | ||
| こだわり条件 | |||
| 備考 | 税込表示/河原町通に面する商業ビル/商店街組合費、看板料など別途要/業種相談審査有/他階同条件にて募集/ | ||
出店可能な業態
※出店可能業態は、現在情報更新中です。
最新情報は、不動産会社にお問い合わせください。
| 保証金または敷金 | 構造 | ||
|---|---|---|---|
| 権利金または礼金 | 契約期間 | ||
| 共益費および管理費 | 償却 | ||
| 更新料 | 築年 | ||
| 取引態様 | 担当者名 | ||
| 取り扱い不動産会社情報 |
詳細な情報は
会員登録後に確認できます。
※既に会員の方はログインしてください。
京都河原町駅周辺の飲食店の運営費の相場
-
賃料相場⇒京都河原町駅の物件相場を見る
平均坪単価:23,943円 最高坪単価:93,447円 最低坪単価:6,092円 -
正社員平均月給:29.3万円 アルバイト平均時給:1,209円
運営費の相場データについて
- こちらの情報は日々更新されており、最新の情報がご覧いただけます。
- サンプル件数の増減により表現に偏りが出ることもございますので予めご了承下さい。
- ※賃料相場は、飲食店ドットコムに直近1年間で掲載された物件を集計したものになります。
- ※給与相場は、求人飲食店ドットコムに直近1年間に掲載された求人情報の給与下限額より集計したものになります。
初めてご利用の方へ
-
出店可能業態から京都市中京区の物件を探す
-
出店可能業態から京都河原町駅の物件を探す
-
出店可能業態から祇園四条駅の物件を探す
-
同じエリア・階数から探す
-
同じエリアから居抜き物件を探す
-
人気スポットから物件を探す
