スケルトン
飲食店不可
川越市脇田本町 37.4万円 川越駅徒歩1分の貸店舗物件
-
この物件には
会員登録して確認(無料)
図面1枚
が登録されています。
物件情報
会員登録(無料) をすると周辺飲食店ページで以下のような情報を知ることができます!
- グラフに表示される業態は13種あります。
- 対象の物件から半径100m、250m、500m毎のデータをご覧いただけます。
- 現在、周辺飲食店データは首都圏・関西版のみご利用いただけます。
| 所在地 |
川越市脇田本町
詳しい住所を知るには? 1.取り扱い不動産会社に問い合わせる 問い合わせる(無料会員登録)2.飲食店.COMプレミアムを利用する
飲食店プレミアム(有料サービス)に加入すると、物件の完全な住所を表示。 その他にも物件探しに役立つ特典があります。
|
||
|---|---|---|---|
| 最寄り駅 |
JR川越線 川越 徒歩1分 (乗降者数:76,224人/日) 東武東上線 川越 徒歩1分 (乗降者数:124,534人/日) JR川越線 川越 徒歩2分 (乗降者数:76,224人/日) 東武東上線 川越 徒歩2分 (乗降者数:124,534人/日) 西武新宿線 本川越 徒歩11分 (乗降者数:53,230人/日) |
||
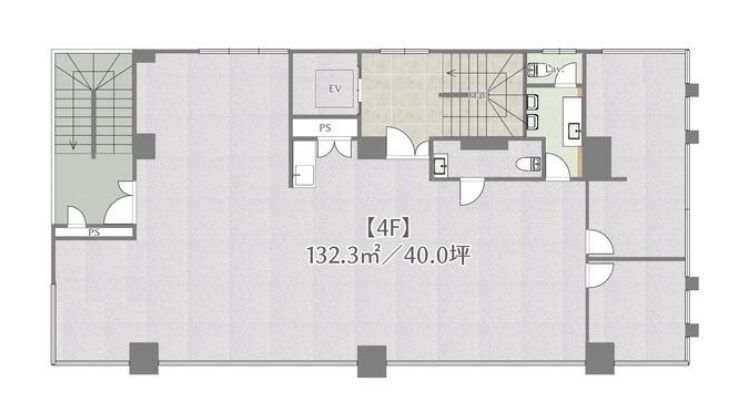
| 賃料 /坪単価 | 37.4万円 / 9,345円 | 建物・階数 | 地上7階建 ・ 地上5階 |
| 面積m2・坪 | 132.3m2 / 40.02坪 | ||
| 造作譲渡料 / 前テナント | |||
| 飲食店出店の可否 | 飲食店出店不可 | ||
| こだわり条件 | |||
| 備考 |
[その他費用] 保険等:要 賃貸保証:利⽤可 保証会社ジェイリース加入 鍵交換費⽤:33,000円 ⼝座振替⼿数料:440円/⽉ その他の諸条件はご相談ください。 |
||
出店可能な業態
※出店可能業態は、現在情報更新中です。
最新情報は、不動産会社にお問い合わせください。
| 保証金または敷金 | 構造 | ||
|---|---|---|---|
| 権利金または礼金 | 契約期間 | ||
| 共益費および管理費 | 償却 | ||
| 更新料 | 築年 | ||
| 取引態様 | 担当者名 | ||
| 取り扱い不動産会社情報 |
詳細な情報は
会員登録後に確認できます。
※既に会員の方はログインしてください。
川越駅周辺の飲食店の運営費の相場
-
賃料相場⇒川越駅の物件相場を見る
平均坪単価:16,110円 最高坪単価:73,333円 最低坪単価:1,725円 -
正社員平均月給:28.2万円 アルバイト平均時給:1,131円
運営費の相場データについて
- こちらの情報は日々更新されており、最新の情報がご覧いただけます。
- サンプル件数の増減により表現に偏りが出ることもございますので予めご了承下さい。
- ※賃料相場は、飲食店ドットコムに直近1年間で掲載された物件を集計したものになります。
- ※給与相場は、求人飲食店ドットコムに直近1年間に掲載された求人情報の給与下限額より集計したものになります。
初めてご利用の方へ
-
出店可能業態から川越市の物件を探す
-
出店可能業態から川越駅の物件を探す
-
出店可能業態から本川越駅の物件を探す
-
同じエリア・階数から探す
-
同じエリアから居抜き物件を探す
