New!
居抜き
飲食店不可
神戸市中央区北長狭通6 10.0万円 花隈駅徒歩1分の居抜き・貸店舗物件
-
この物件には
会員登録して確認(無料)
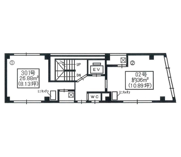
図面1枚
が登録されています。
物件情報
会員登録(無料) をすると周辺飲食店ページで以下のような情報を知ることができます!
- グラフに表示される業態は13種あります。
- 対象の物件から半径100m、250m、500m毎のデータをご覧いただけます。
- 現在、周辺飲食店データは首都圏・関西版のみご利用いただけます。
| 所在地 |
神戸市中央区北長狭通6
詳しい住所を知るには? 1.取り扱い不動産会社に問い合わせる 問い合わせる(無料会員登録)2.飲食店.COMプレミアムを利用する
飲食店プレミアム(有料サービス)に加入すると、物件の完全な住所を表示。 その他にも物件探しに役立つ特典があります。
|
||
|---|---|---|---|
| 最寄り駅 |
神戸高速東西線 花隈 徒歩1分 (乗降者数:9,536人/日) JR東海道本線 元町 徒歩10分 (乗降者数:71,864人/日) 神戸高速東西線 西元町 徒歩3分 (乗降者数:5,776人/日) 地下鉄海岸線(夢かもめ) みなと元町 徒歩4分 (乗降者数:3,721人/日) 地下鉄西神・山手線 大倉山 徒歩7分 (乗降者数:11,732人/日) |
||
| 賃料 /坪単価 | 10万円 / 10,593円 | 建物・階数 | 地上9階建 ・ 地上2階 |
| 面積m2・坪 | 31.21m2 / 9.44坪 | ||
| 造作譲渡料 / 前テナント | 事務所仕様 | ||
| 飲食店出店の可否 | 飲食店出店不可 | ||
| こだわり条件 | |||
| 備考 |
設備:エレベーター / エアコン / BS・CS / 給湯 / 温 水洗浄便座 / 防犯カメラ 保証会社加入必須 その他の諸条件はご相談ください。 |
||
出店可能な業態
※出店可能業態は、現在情報更新中です。
最新情報は、不動産会社にお問い合わせください。
| 保証金または敷金 | 構造 | ||
|---|---|---|---|
| 権利金または礼金 | 契約期間 | ||
| 共益費および管理費 | 償却 | ||
| 更新料 | 築年 | ||
| 取引態様 | 担当者名 | ||
| 取り扱い不動産会社情報 |
詳細な情報は
会員登録後に確認できます。
※既に会員の方はログインしてください。
花隈駅周辺の飲食店の運営費の相場
-
賃料相場⇒花隈駅の物件相場を見る
平均坪単価:12,167円 最高坪単価:52,203円 最低坪単価:4,701円
運営費の相場データについて
- こちらの情報は日々更新されており、最新の情報がご覧いただけます。
- サンプル件数の増減により表現に偏りが出ることもございますので予めご了承下さい。
- ※賃料相場は、飲食店ドットコムに直近1年間で掲載された物件を集計したものになります。
- ※給与相場は、求人飲食店ドットコムに直近1年間に掲載された求人情報の給与下限額より集計したものになります。
初めてご利用の方へ
-
出店可能業態から神戸市中央区の物件を探す
-
出店可能業態から花隈駅の物件を探す
-
出店可能業態から元町駅の物件を探す
-
同じエリアからその他店舗物件の居抜き物件を探す
-
同じエリア・階数から探す
-
同じエリアから居抜き物件を探す
