スケルトン
港区六本木7 39.84万円 小ぶりな1階飲食可物件(居抜きご相談)≪デメリット≫深夜営業はNGとなります の貸店舗物件
-
-
この物件には
会員登録して確認(無料)
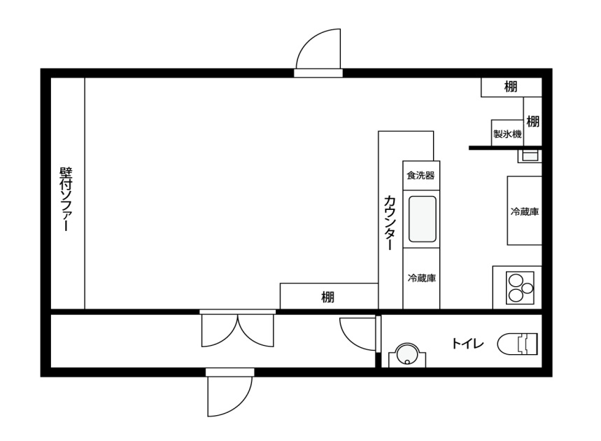
写真2枚、図面1枚
が登録されています。
物件情報
会員登録(無料) をすると周辺飲食店ページで以下のような情報を知ることができます!
- グラフに表示される業態は13種あります。
- 対象の物件から半径100m、250m、500m毎のデータをご覧いただけます。
- 現在、周辺飲食店データは首都圏・関西版のみご利用いただけます。
| 所在地 |
港区六本木7
詳しい住所を知るには? 1.取り扱い不動産会社に問い合わせる 問い合わせる(無料会員登録)2.飲食店.COMプレミアムを利用する
飲食店プレミアム(有料サービス)に加入すると、物件の完全な住所を表示。 その他にも物件探しに役立つ特典があります。
|
||
|---|---|---|---|
| 最寄り駅 |
東京メトロ日比谷線 六本木 徒歩4分 (乗降者数:133,164人/日) 東京メトロ千代田線 乃木坂 徒歩4分 (乗降者数:42,374人/日) 東京メトロ南北線 六本木一丁目 徒歩12分 (乗降者数:88,956人/日) 都営大江戸線 青山一丁目 徒歩13分 (乗降者数:77,984人/日) |
||
| 賃料 /坪単価 | 39.84万円 / 37,943円 | 建物・階数 | 地上3階建 ・ 地上1階 |
| 面積m2・坪 | 34.72m2 / 10.5坪 | ||
| 造作譲渡料 / 前テナント | フレンチ | ||
| 飲食店出店の可否 | 飲食店出店可 | ||
| こだわり条件 | 看板取り付け可 | ||
| 備考 |
出店可能業種 【重飲食】和食・寿司/うどん・そば/洋食・レストラン/パン屋・ケーキ屋等※ニオイ・煙。油多い業種NG 【軽飲食(喫茶店・カフェなど)】 カフェ・喫茶店 ※引渡し2026年1月中旬予定≪メリット≫小ぶりな1階飲食可物件(居抜きご相談)≪デメリット≫深夜営業はNGとなります(営業時間24時厳守) 六本木の隠れ家的店舗お考えの方にはお勧めです! 賃貸保証等:加入要(保証会社加入義務有) 前テナント:フレンチレストラン、天井高:(確認中)、保証会社必須、トイレ(室内)、飲食可、居抜き、深夜営業不可、ガス使用可、袖看板使用料:10,000円(税別)、 |
||
出店可能な業態
※出店可能業態は、現在情報更新中です。
最新情報は、不動産会社にお問い合わせください。
| 保証金または敷金 | 構造 | ||
|---|---|---|---|
| 権利金または礼金 | 契約期間 | ||
| 共益費および管理費 | 償却 | ||
| 更新料 | 築年 | ||
| 取引態様 | 担当者名 | ||
| 取り扱い不動産会社情報 |
詳細な情報は
会員登録後に確認できます。
※既に会員の方はログインしてください。
六本木駅周辺の飲食店の運営費の相場
-
賃料相場⇒六本木駅の物件相場を見る
平均坪単価:39,092円 最高坪単価:99,000円 最低坪単価:15,749円 -
正社員平均月給:31.4万円 アルバイト平均時給:1,404円
運営費の相場データについて
- こちらの情報は日々更新されており、最新の情報がご覧いただけます。
- サンプル件数の増減により表現に偏りが出ることもございますので予めご了承下さい。
- ※賃料相場は、飲食店ドットコムに直近1年間で掲載された物件を集計したものになります。
- ※給与相場は、求人飲食店ドットコムに直近1年間に掲載された求人情報の給与下限額より集計したものになります。
初めてご利用の方へ
-
出店可能業態から港区の物件を探す
-
出店可能業態から六本木駅の物件を探す
-
出店可能業態から乃木坂駅の物件を探す
-
同じエリアからフランス料理の居抜き物件を探す
-
同じエリア・階数から探す
-
同じエリアから居抜き物件を探す
-
キーワードから探す
-
キーワードから東京23区の物件を探す
-
人気スポットから物件を探す
